Что ищете?
Санкт-Петербург, Малый проспект Петроградской стороны, дом 16, офис 22
dom@shirota60.ru
СПб, ул. Лизы Чайкиной, дом 25, лит. А
Чтобы связаться с нами:
+7-911-926-04-84
+7-911-926-04-64

Проект Асилан

2
Этажность
120
Площадь, м²
7,5x11 м
75,8 м²
3
2
Кирпич, Газобетон
размер
Жилая площадь
Спален
Модерн
санузлов
материал
Стиль
Терраса
опции
Срок строительcтва
от 180 дней
Стоимость
от 7 200 000 ₽

Описание проекта

Особенности проекта
Бассейн
Панорамные окна
Терраса
Лаундж-зона
Кабинет
Изящный облик этого дома в минималистичном стиле с плоской крышей. В доме можно разместить 3 спальни, поэтому планировка дома очень удобна.

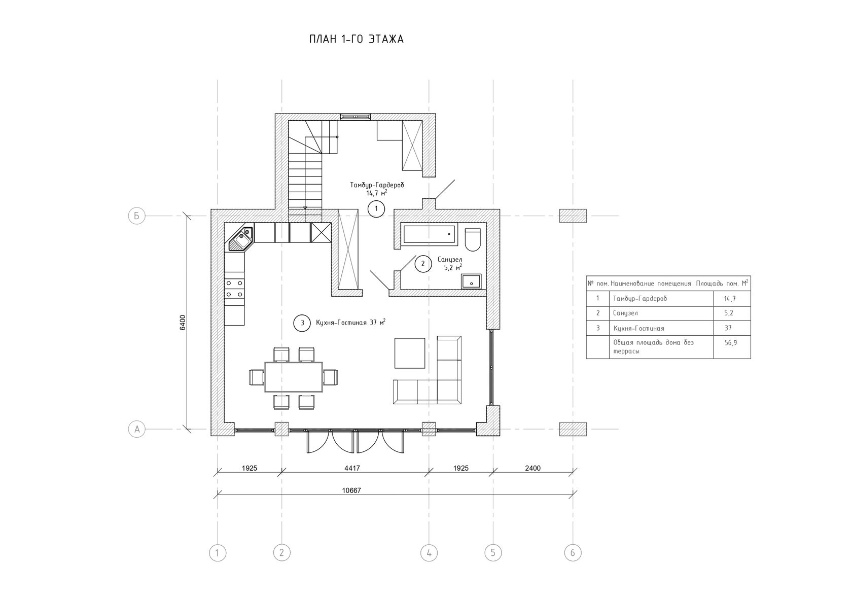
На первом этаже большая свободная гостиная, которую можно отделить от основной зоны или оставить совмещённой с кухней-столовой.

В кухне предусмотрено много рабочих поверхностей, кухонный остров и практичную кладовую. В ней также расположен большой обеденный стол. Рядом с кухней расположены санузел и ванная.

Весь дом прекрасно освещен благодаря панорамным окнам.

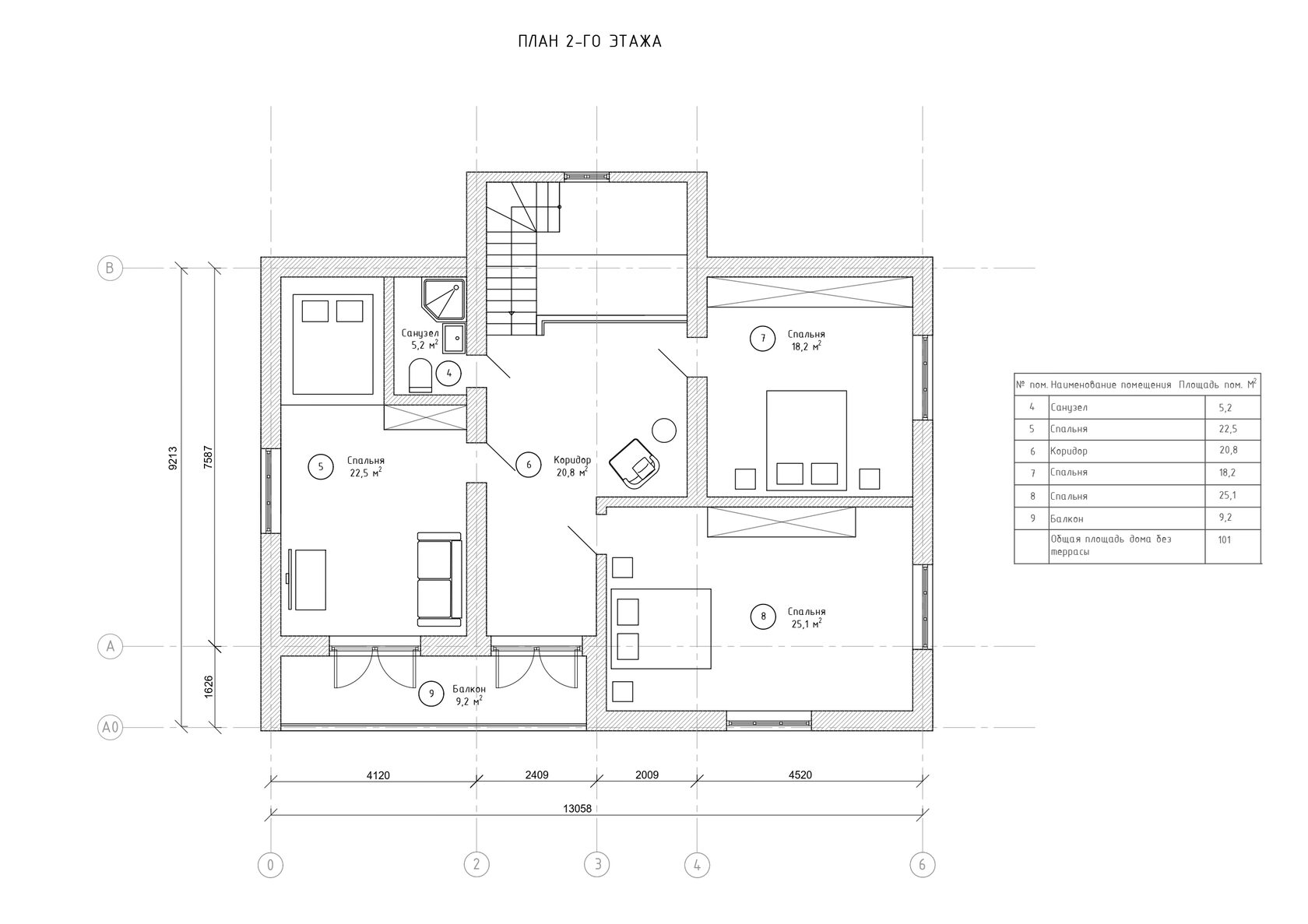
На втором этаже есть выход на балкон, также на втором этаже ванная комната и три спальни.

Проект может быть изменён в размерах и назначениях помещений.

Планировка дома

Кухня-столовая совмещённая с гостиной 21 м²
Коридор 3 м²
Санузел 5 м²
Лестница 6 м²
Планировка первого этажа
Планировка второго этажа
Спальня 24,8 м²
Коридор 8 м²
Спальня 2 16 м²
Спальня 3 14 м²
Лестница 6 м²
Ванная 4,1 м²
Остеклённая терасса 8 м²

Не нашли подходящий проект в каталоге?

Мы можем разработать для вас индивидуальный проект!
Учтём все ваши требования по оформлению, планировке, дизайну. Закажите бесплатную консультацию по проекту дома вашей мечты.
Мы можем разработать для вас индивидуальный проект! Учтём все ваши требования по оформлению, планировке, дизайну. Закажите бесплатную консультацию по проекту дома вашей мечты.
Получить консультацию

Состав проекта

Общие данные по проекту
Основные строительные показатели
Экспликация полов
Ведомость отделки помещений
Ведомость перемычек
Спецификации заполнения оконных и дверных проемов
Вентиляционные стояки
Поэтажные планы
Фасады
План кровли
Основные разрезы по дому
Маркировочные планы
Архитектурно-строительный раздел (АР):
Конструктивные решения (КР):
Общие данные по проекту
Схемы расположения фундаментов
Схема расположения перекрытий
Схема расположения стропил
Сечения по схемам расположения
Основные конструктивные узлы и детали
Спецификации
Ведомости расхода стали
Выборка древесины
Инженерный раздел (ИР):
Раздел включает внутренние инженерные коммуникации
Водоснабжение и канализация (ВК)
Электрооборудование (ЭО)
Отопление (ОВ) — в часть проектов не входит
Строительный паспорт проекта дома:
Паспорт необходим для согласования и утверждения проекта у районного архитектора
Дополнительная копия рабочих чертежей:
Дополнительная копия необходима для расчета сметы и передачи чертежей строителям
Вся предоставляемая документация разрабатывается при заказе строительства дома под ключ в нашей компании и входит в общую смету строительства. Если вы хотите заказать разработку индивидуального проекта на строительство отдельно, мы готовы оказать вам такую услугу. Для заказа разработки индивидуального проекта заполните форму ниже.
05
02
03
04
01
Остались вопросы?
Расскажем о наших услугах, видах работ, рассчитаем стоимость и подготовим индивидуальное предложение!

Наш менеджер свяжется с вами и расскажет о технологиях, ценах, сроках.
Проекты загородных домов
    Рекомендуемые статьи