Что ищете?
Санкт-Петербург, Малый проспект Петроградской стороны, дом 16, офис 22
dom@shirota60.ru
СПб, ул. Лизы Чайкиной, дом 25, лит. А
Чтобы связаться с нами:
+7-911-926-04-84
+7-911-926-04-64

Проект Гараж 1

1
Этажность
Площадь, м²
6,95x18,9м
Дерево, Газобетон
размер
Современный
материал
Стиль
Открытая планировка
опции
Срок строительcтва
от 20 дней
Стоимость
от 7 308 000 ₽
Санузлов
1
Котельных
1
121,8

Описание проекта

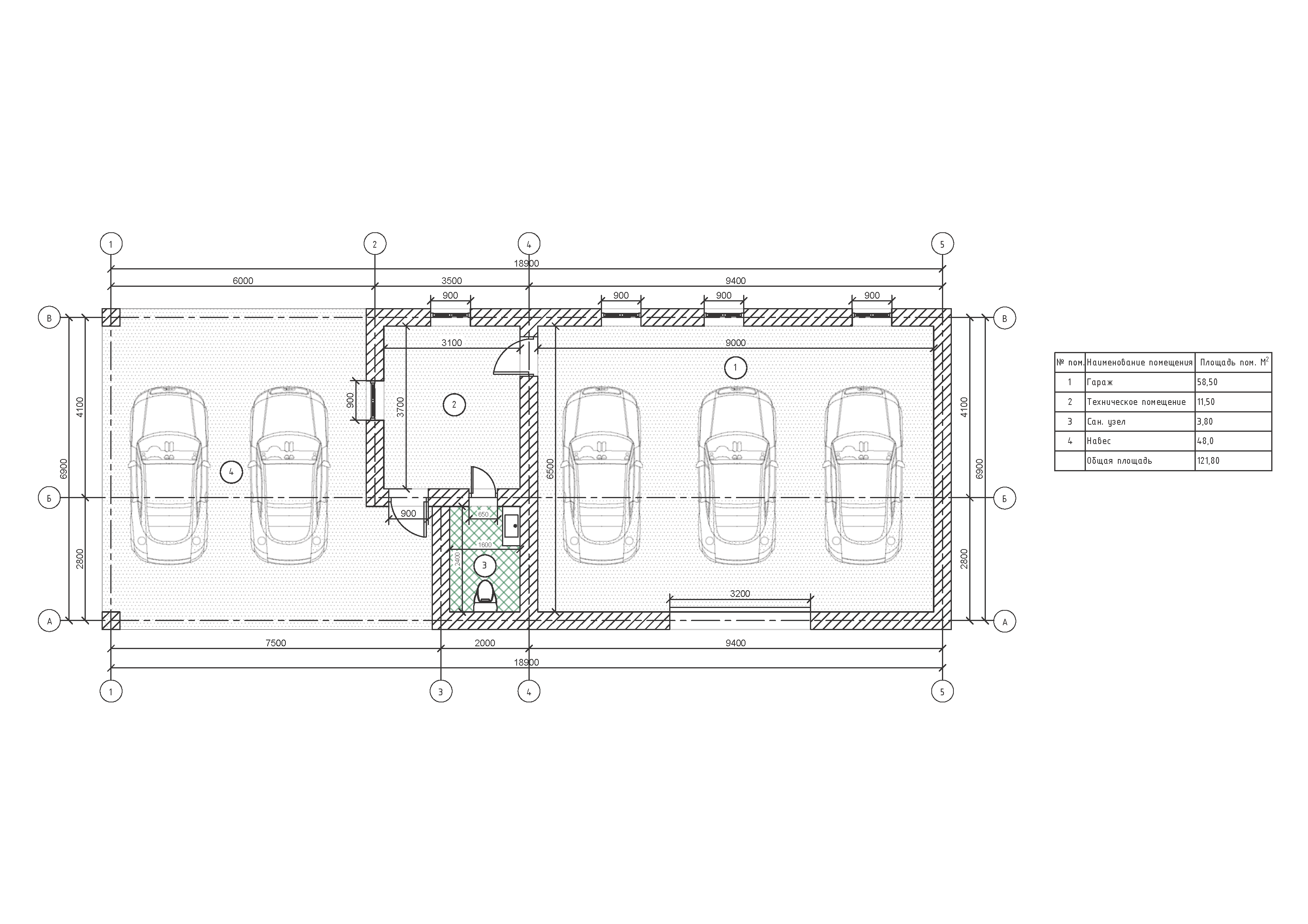
Представляем новый проект гаража с техническим помещением (в данном проекте используемого в качестве котельной) на 3 крытых парковочных места и 2 открытых. В проекте также техническое помещение дополнено санузлом.

Универсальный минималистичный дизайн, может быть отличным дополнением к вашему дому.

Особенности проекта
Окна по периметру
Декоративное оформление
Дополнительное место открытой парковки

Планировка дома

Гараж 58,50 м²
Терраса 48 м²
Санузел 3,8 м²
Котельная 11,50 м²
Планировка первого этажа

Комплектации

из Газобетона
Фундамент: монолитная ж/б плита
Стены: газобетон 400мм, утеплитель
Перекрытия: монолитная ж/б плита
Покрытие кровли: металлочерепица или битумная черепица
Наружная отделка: штукатурка или термопанели
Отделка цоколя: искусственный камень
Окна: rehau GRAZIO 70 мм с энергосберегающим стеклопакетом и москитной сеткой
Двери: Torex Snegir Cottage
из Газобетона
Фундамент:
монолитная ж/б плита
Стены:
газобетон 400 мм, утеплитель
Перекрытия:
монолитная ж/б плита
Покрытие кровли:
металлочерепица или битумная черепица
Наружная отделка:
штукатурка или термопанели
Отделка цоколя:
искусственный камень
Окна:
rehau GRAZIO 70 мм с энергосберегающим стеклопакетом и москитной сеткой
Двери:
Torex Snegir Cottage
При строительстве дома по этому проекту для Вас, мы учтем все персональные пожелания и максимально адаптируем его комплектацию для вас.
Вы также можете заказать у нас строительство по индивидуальному
проекту, который полностью подойдёт под стиль жизни Вас и Вашей семьи.

Не нашли подходящий проект в каталоге?

Мы можем разработать для вас индивидуальный проект!
Учтём все ваши требования по оформлению, планировке, дизайну. Закажите бесплатную консультацию по проекту дома вашей мечты.
Мы можем разработать для вас индивидуальный проект! Учтём все ваши требования по оформлению, планировке, дизайну. Закажите бесплатную консультацию по проекту дома вашей мечты.
Получить консультацию

Состав проекта

Общие данные по проекту
Основные строительные показатели
Экспликация полов
Ведомость отделки помещений
Ведомость перемычек
Спецификации заполнения оконных и дверных проемов
Вентиляционные стояки
Поэтажные планы
Фасады
План кровли
Основные разрезы по дому
Маркировочные планы
Архитектурно-строительный раздел (АР):
Конструктивные решения (КР):
Общие данные по проекту
Схемы расположения фундаментов
Схема расположения перекрытий
Схема расположения стропил
Сечения по схемам расположения
Основные конструктивные узлы и детали
Спецификации
Ведомости расхода стали
Выборка древесины
Инженерный раздел (ИР):
Раздел включает внутренние инженерные коммуникации
Водоснабжение и канализация (ВК)
Электрооборудование (ЭО)
Отопление (ОВ) — в часть проектов не входит
Строительный паспорт проекта дома:
Паспорт необходим для согласования и утверждения проекта у районного архитектора
Дополнительная копия рабочих чертежей:
Дополнительная копия необходима для расчета сметы и передачи чертежей строителям
Вся предоставляемая документация разрабатывается при заказе строительства дома под ключ в нашей компании и входит в общую смету строительства. Если вы хотите заказать разработку индивидуального проекта на строительство отдельно, мы готовы оказать вам такую услугу. Для заказа разработки индивидуального проекта заполните форму ниже.
05
02
03
04
01
Остались вопросы?
Расскажем о наших услугах, видах работ, рассчитаем стоимость и подготовим индивидуальное предложение!

Наш менеджер свяжется с вами и расскажет о технологиях, ценах, сроках.
Проекты загородных домов
    Рекомендуемые статьи