Что ищете?
Санкт-Петербург, Малый проспект Петроградской стороны, дом 16, офис 22
dom@shirota60.ru
СПб, ул. Лизы Чайкиной, дом 25, лит. А
Чтобы связаться с нами:
+7-911-926-04-84
+7-911-926-04-64

Проект Гелиос

2
Этажность
348,5
Площадь, м²
13,2x14,2 м
162 м²
4
3
Кирпич, Газобетон
размер
Жилая площадь
Спален
Модерн
санузлов
материал
Стиль
Терраса
опции
Срок строительcтва
от 180 дней
Стоимость
от 20 910 000 ₽
Стоимость + опции
от 21 955 500 ₽

Описание проекта

Особенности проекта
Окно в ванной
Панорамные окна
Терраса
Лаундж-зона
Кабинет
Изящный облик этого дома в минималистичном стиле понравится нашим клиентам, которые стремятся выделиться. В доме можно разместить от 4 до 5 спален, так что эта планировка дома понравится как семьям с несколькими детьми, так и семьям из нескольких поколений.

На первом этаже есть гардеробная. Домашний офис расположен рядом с гостинной и может быть легко преобразован в детскую, спальню или комнату любого другого назначения, в зависимости от ваших потребностей.

На втором этаже есть вторая гостиная, которую также можно переделать под комнату другого назначения.

В кухне предусмотрено много рабочих поверхностей, кухонный остров и практичную кладовую. В ней также расположен большой обеденный стол. Рядом с кухней расположены санузел и ванная.

Весь дом прекрасно освещен благодаря панорамным окнам, выходящим на террасу, а также окнам второго света.

На втором этаже спальни с выходом на остеклённую теплую террасу хорошего размера, также на втором этаже расположена прачечная, ванная комната.

Проект может быть изменён в размерах и назначениях помещений.

Планировка дома

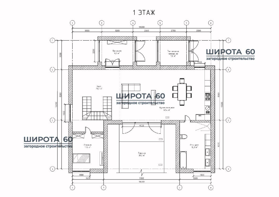
Планировка первого этажа
Кухня-столовая совмещённая с гостиной 48,4 м²
Холл 23,7 м²
Техническое помещение 7 м²
Ванная 15,3 м²
Спальня 11,5 м²
Коридор 8,3 м²
Терраса 39,3 м²
Планировка второго этажа
Спальня 19,6 м²
Спальня 11 м²
Холл 29,3 м²
Ванная 6,5 м²
Спальня 13,2 м²
Балкон 28,2 м²
Спальня 11,5 м²
Ванная 7 м²

Не нашли подходящий проект в каталоге?

Мы можем разработать для вас индивидуальный проект!
Учтём все ваши требования по оформлению, планировке, дизайну. Закажите бесплатную консультацию по проекту дома вашей мечты.
Мы можем разработать для вас индивидуальный проект! Учтём все ваши требования по оформлению, планировке, дизайну. Закажите бесплатную консультацию по проекту дома вашей мечты.
Получить консультацию

Состав проекта

Общие данные по проекту
Основные строительные показатели
Экспликация полов
Ведомость отделки помещений
Ведомость перемычек
Спецификации заполнения оконных и дверных проемов
Вентиляционные стояки
Поэтажные планы
Фасады
План кровли
Основные разрезы по дому
Маркировочные планы
Архитектурно-строительный раздел (АР):
Конструктивные решения (КР):
Общие данные по проекту
Схемы расположения фундаментов
Схема расположения перекрытий
Схема расположения стропил
Сечения по схемам расположения
Основные конструктивные узлы и детали
Спецификации
Ведомости расхода стали
Выборка древесины
Инженерный раздел (ИР):
Раздел включает внутренние инженерные коммуникации
Водоснабжение и канализация (ВК)
Электрооборудование (ЭО)
Отопление (ОВ) — в часть проектов не входит
Строительный паспорт проекта дома:
Паспорт необходим для согласования и утверждения проекта у районного архитектора
Дополнительная копия рабочих чертежей:
Дополнительная копия необходима для расчета сметы и передачи чертежей строителям
Вся предоставляемая документация разрабатывается при заказе строительства дома под ключ в нашей компании и входит в общую смету строительства. Если вы хотите заказать разработку индивидуального проекта на строительство отдельно, мы готовы оказать вам такую услугу. Для заказа разработки индивидуального проекта заполните форму ниже.
05
02
03
04
01
Остались вопросы?
Расскажем о наших услугах, видах работ, рассчитаем стоимость и подготовим индивидуальное предложение!

Наш менеджер свяжется с вами и расскажет о технологиях, ценах, сроках.
Проекты загородных домов
    Рекомендуемые статьи