Что ищете?
Санкт-Петербург, Малый проспект Петроградской стороны, дом 16, офис 22
dom@shirota60.ru
СПб, ул. Лизы Чайкиной, дом 25, лит. А
Чтобы связаться с нами:
+7-911-926-04-84
+7-911-926-04-64

Проект Зелёные горки

2
Этажность
665,7
Площадь, м²
10x37 м
238,6 м²
4
3
Кирпич, Газобетон
размер
Жилая площадь
Спален
Фармхаус
санузлов
материал
Стиль
Терраса, балкон
опции
Срок строительcтва
от 180 дней
Стоимость
от 39 942 000 ₽

Описание проекта

Особенности проекта
Пергола
Окно в ванной
Панорамные окна
Терраса
Камин
Современный план дома с гаражом на две машины и 3 крытыми террасами!

Эта планировка компактного дома с тремя спальнями площадью 202 квадратных метра рассчитана на семью с двумя детьми. Главной особенностью планировки этого дома являются три террасы, которые дают возможность насладиться свежим воздухом, практически не выходя из дома.

Пройдя отделённую прихожую со встроенным шкафом, мы попадаем в небольшой коридор, соединяющий главную жилую зону дома с гаражом, прачечной и санузлом.
В просторной гостиной много естественного света, благодаря большим окнам, а также большой камин с встроенными шкафами по бокам. Кухня спроектирована вокруг большого центрального острова, на котором легко могут разместиться 5 гостей, а рядом расположена удобная кладовая. Выход на террасу с перголой легко доступен как из кухни, так и из гостиной. Из столовой же можно попасть на другую террасу, поменьше.

Наверху в главной спальне есть большая гардеробная и ванная комната с двойной раковиной, отдельной ванной и душем. Кроме того, в главной спальне есть крытый балкон, на котором можно насладиться чашкой кофе вдали от семейной суеты. Для двух других спален на этаже есть большая ванная комната с отдельным туалетом, двойным умывальником, а также душевой кабиной и ванной.

В проекте предусмотрен цокольный этаж, в который можно попасть как из дома, так и из гаража. При желании цокольный этаж можно заменить на монолитный фундамент.

Планировка дома

Столовая 47,85 м²
Гостиная 58,65 м²
Кухня 31,6 м²
Прачечная 7,10 м²
Прихожая 8,3 м²
Гараж 119,7 м²
Санузел 14,3 м²
Холл 14,2 м²
Крыльцо 6,3 м²
Планировка первого этажа
Терраса 28,1 м²
Техническое помещение 10 м²
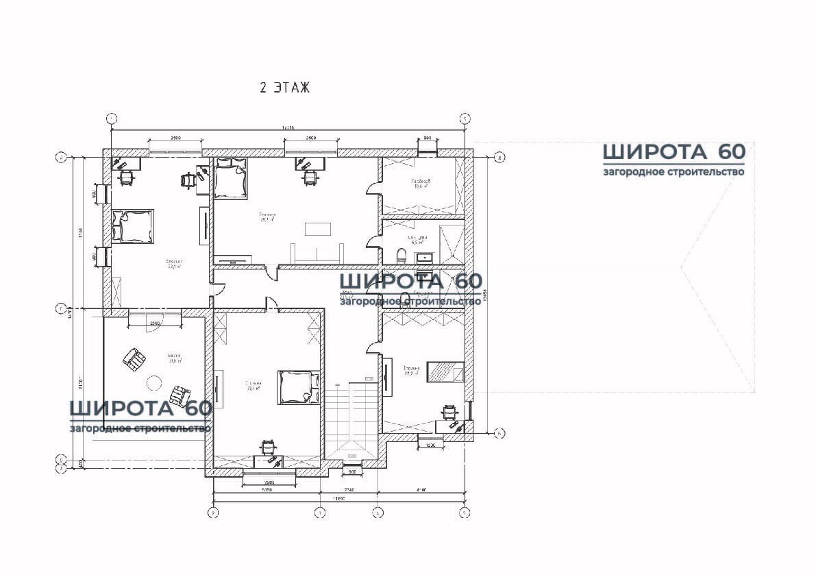
Мастер-спальня 39,7 м²
Гардероб 10,6 м²
Спальня 37,1 м²
Спальня 22,2 м²
Санузел 8,5 м²
Планировка второго этажа
Холл 23,5 м²
Спальня 33,1 м²
Санузел 7,3 м²
Балкон 31 м²

Не нашли подходящий проект в каталоге?

Мы можем разработать для вас индивидуальный проект!
Учтём все ваши требования по оформлению, планировке, дизайну. Закажите бесплатную консультацию по проекту дома вашей мечты.
Мы можем разработать для вас индивидуальный проект! Учтём все ваши требования по оформлению, планировке, дизайну. Закажите бесплатную консультацию по проекту дома вашей мечты.
Получить консультацию

Состав проекта

Общие данные по проекту
Основные строительные показатели
Экспликация полов
Ведомость отделки помещений
Ведомость перемычек
Спецификации заполнения оконных и дверных проемов
Вентиляционные стояки
Поэтажные планы
Фасады
План кровли
Основные разрезы по дому
Маркировочные планы
Архитектурно-строительный раздел (АР):
Конструктивные решения (КР):
Общие данные по проекту
Схемы расположения фундаментов
Схема расположения перекрытий
Схема расположения стропил
Сечения по схемам расположения
Основные конструктивные узлы и детали
Спецификации
Ведомости расхода стали
Выборка древесины
Инженерный раздел (ИР):
Раздел включает внутренние инженерные коммуникации
Водоснабжение и канализация (ВК)
Электрооборудование (ЭО)
Отопление (ОВ) — в часть проектов не входит
Строительный паспорт проекта дома:
Паспорт необходим для согласования и утверждения проекта у районного архитектора
Дополнительная копия рабочих чертежей:
Дополнительная копия необходима для расчета сметы и передачи чертежей строителям
Вся предоставляемая документация разрабатывается при заказе строительства дома под ключ в нашей компании и входит в общую смету строительства. Если вы хотите заказать разработку индивидуального проекта на строительство отдельно, мы готовы оказать вам такую услугу. Для заказа разработки индивидуального проекта заполните форму ниже.
05
02
03
04
01
Остались вопросы?
Расскажем о наших услугах, видах работ, рассчитаем стоимость и подготовим индивидуальное предложение!

Наш менеджер свяжется с вами и расскажет о технологиях, ценах, сроках.
Проекты загородных домов
    Рекомендуемые статьи