Что ищете?
Санкт-Петербург, Малый проспект Петроградской стороны, дом 16, офис 22
dom@shirota60.ru
СПб, ул. Лизы Чайкиной, дом 25, лит. А
Чтобы связаться с нами:
+7-911-926-04-84
+7-911-926-04-64

Проект Ладога

2
Этажность
269,85
Площадь, м²
19,6x10,1 м
200 м²
4
3
Кирпич, Газобетон
размер
Жилая площадь
Спален
Модерн
санузлов
материал
Стиль
Терраса
опции
Срок строительcтва
от 180 дней
Стоимость
от 16 191 000 ₽

Описание проекта

Особенности проекта
Окно в ванной
Панорамные окна
Терраса
Второй свет
Балкон
Изящный облик этого дома в минималистичном стиле понравится нашим клиентам, которые хотят построить современный дом. В доме можно разместить от 4 до 5 спален, включая главную спальню на первом этаже, так что эта планировка дома понравится как семьям с несколькими детьми, так и семьям из нескольких поколений.

В прихожей есть встроенный шкаф для верхней одежды. Домашний офис расположен недалеко от главного входа в дом и может быть легко преобразован в детскую, спальню № 5 или игровую комнату, в зависимости от ваших потребностей. Мастер-спальня удобно расположена на первом этаже и понравится семьям с детьми старшего возраста или подростками. В главной спальне есть собственная терраса, а также вместительная гардеробная. В отдельной ванной комнате есть двойная раковина, большая душевая кабина и туалет.

В кухне предусмотрено много рабочих поверхностей, кухонный остров и практичную кладовую. В ней также расположен большой обеденный стол. Рядом с кухней расположены гостевой санузел и постирочная.
Зона гостиной прекрасно освещена благодаря панорамным окнам, выходящим на террасу, а также окнам второго света.

На втором этаже три спальни хорошего размера имеют общую ванную комнату с ванной, душем, двойной раковиной и туалетом. На том же этаже окна второго света дают много естественного света.

Гараж на две машины предлагает доступ к улице и первому этажу дома. Проект может быть дополнен цокольным этажом.

Планировка дома

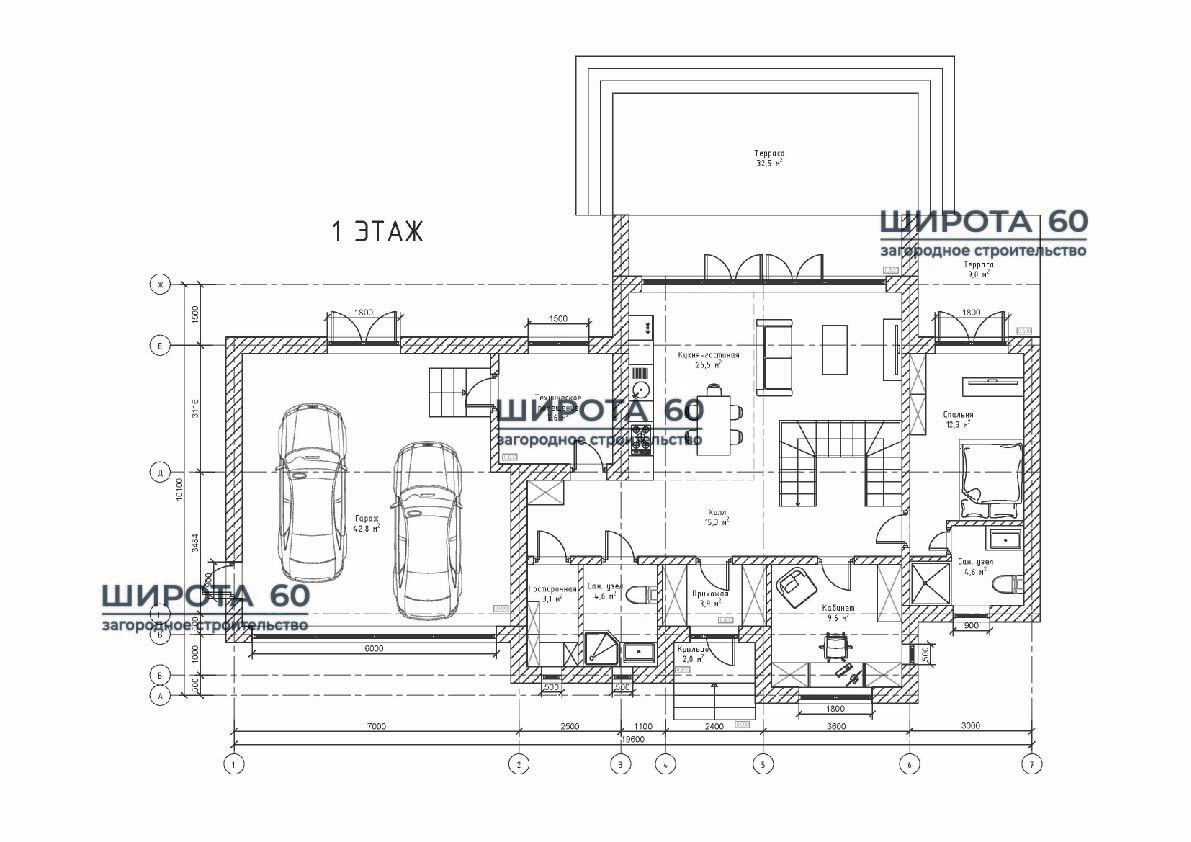
Мастер-спальня 12,3 м²
Санузел 4,6 м²
Прачечная 3,1 м²
Терраса 9 м²
Кухня 18,5 м²
Кабинет 9,6 м²
Кухня-гостиная 26,5 м²
Техническое помещение 7,6 м²
Планировка первого этажа
Холл 15,3 м²
Санузел 4,6 м²
Крыльцо 2 м²
Гараж 42,8 м²
Терраса 32,5 м²
Спальня 2 11 м²
Спальня 3 11 м²
Спальня 4 10 м²
Ванная 10 м²
Балкон 14 м²
Планировка второго этажа

Не нашли подходящий проект в каталоге?

Мы можем разработать для вас индивидуальный проект!
Учтём все ваши требования по оформлению, планировке, дизайну. Закажите бесплатную консультацию по проекту дома вашей мечты.
Мы можем разработать для вас индивидуальный проект! Учтём все ваши требования по оформлению, планировке, дизайну. Закажите бесплатную консультацию по проекту дома вашей мечты.
Получить консультацию

Состав проекта

Общие данные по проекту
Основные строительные показатели
Экспликация полов
Ведомость отделки помещений
Ведомость перемычек
Спецификации заполнения оконных и дверных проемов
Вентиляционные стояки
Поэтажные планы
Фасады
План кровли
Основные разрезы по дому
Маркировочные планы
Архитектурно-строительный раздел (АР):
Конструктивные решения (КР):
Общие данные по проекту
Схемы расположения фундаментов
Схема расположения перекрытий
Схема расположения стропил
Сечения по схемам расположения
Основные конструктивные узлы и детали
Спецификации
Ведомости расхода стали
Выборка древесины
Инженерный раздел (ИР):
Раздел включает внутренние инженерные коммуникации
Водоснабжение и канализация (ВК)
Электрооборудование (ЭО)
Отопление (ОВ) — в часть проектов не входит
Строительный паспорт проекта дома:
Паспорт необходим для согласования и утверждения проекта у районного архитектора
Дополнительная копия рабочих чертежей:
Дополнительная копия необходима для расчета сметы и передачи чертежей строителям
Вся предоставляемая документация разрабатывается при заказе строительства дома под ключ в нашей компании и входит в общую смету строительства. Если вы хотите заказать разработку индивидуального проекта на строительство отдельно, мы готовы оказать вам такую услугу. Для заказа разработки индивидуального проекта заполните форму ниже.
05
02
03
04
01
Остались вопросы?
Расскажем о наших услугах, видах работ, рассчитаем стоимость и подготовим индивидуальное предложение!

Наш менеджер свяжется с вами и расскажет о технологиях, ценах, сроках.
Проекты загородных домов
    Рекомендуемые статьи