Что ищете?
Санкт-Петербург, Малый проспект Петроградской стороны, дом 16, офис 22
dom@shirota60.ru
СПб, ул. Лизы Чайкиной, дом 25, лит. А
Чтобы связаться с нами:
+7-911-926-04-84
+7-911-926-04-64

Проект Лесные поляны

2
Этажность
387
Площадь, м²
15x27 м
387 , м²
4
5
Газобетон, Кирпич
размер
Жилая площадь
Спален
Фармхаус
санузлов
материал
Стиль
Спальни-люкс
опции
Срок строительcтва
от 180 дней
Стоимость
от 23 220 000 ₽

Описание проекта

Особенности проекта
Открытая планировка
Спальни-люкс
Гараж на 3 машины
Терраса
Кабинет
2 камина
План дома с 4 мастер-спальнями, гостиной с камином и гаражом на 3 машины + огромная бонусная комната!

План большого и комфортного дома с 4 мастер-спальнями, кабинетом на двоих, камином в главной спальне и огромным бонусным пространством над гаражом.

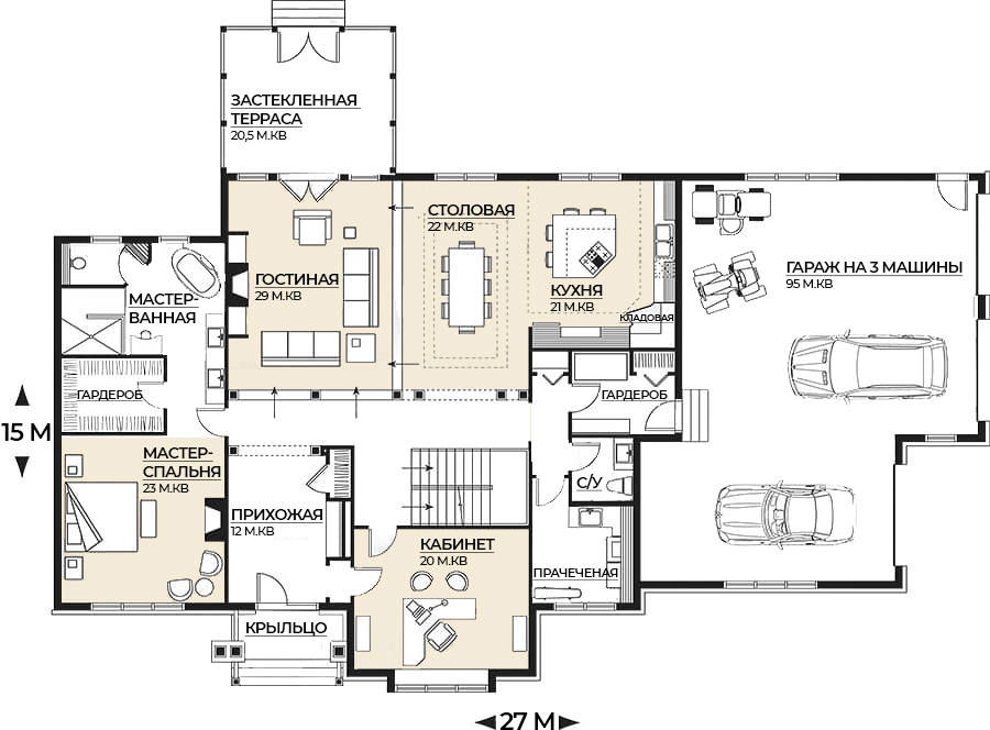
Из просторной прихожей со встроенными шкафами для одежды открывается прекрасный вид на гостиную, а также из неё ведёт отдельный вход сразу в кабинет.
Гостиная «утоплена» на 30 см, так что вкупе со вторым светом, в ней создаётся светлое и воздушное пространство. Камин, обрамлённый встроенными шкафами, наполняет комнату теплом и уютом. Выход из гостиной ведёт на крытую и застеклённую террасу.

Слева от вход находится главная спальня, со своим отдельным камином, гардеробом, а также роскошной мастер-ванной с душевой, двойной раковиной и отдельно стоящей ванной.

Большая кухня с островом, кладовой и обеденной стойкой на четверых примыкает к столовой. Рядом находится проход в гараж через отдельную гардеробную, а рядом с ним гостевой санузел и просторная прачечная.

В гараже на три машины спроектированы увеличенные ворота, чтобы владельцам было удобно въезжать на больших машинах.

На втором этаже расположены три спальни-люкс. В каждой из спален есть гардероб, ванная с душевой и ванной, а также рабочее место или читальный уголок. Кроме того, над гаражом расположено дополнительное пространство, которое можно использовать для любых нужд.

В проекте предусмотрен цокольный этаж, который не показан на плане, но при желании этот дом можно поставить на монолитную плиту с ростверком или ленточный фундамент.

Планировка дома

Кухня 21 м²
Кладовая 1,5 м²
Столовая 22 м²
Гостиная 29 м²
Прихожая 12 м²
Мастер-спальня 23 м²
Гардероб 8 м²
Мастер-ванная 17 м²
Прачечная 8 м²
Кабинет 20 м²
Санузел 3,3 м²
Гардероб 8 м²
Терраса 20,5 м²
Гараж 95 м²
Планировка первого этажа
Спальня 2 22 м²
Гардероб 6,3 м²
Ванная 10,8 м²
Спальня 3 21 м²
Гардероб 7 м²
Ванная 9,6 м²
Спальня 4 24 м²
Гардероб 6,7 м²
Ванная 11 м²
Бонус 60 м²
Планировка второго этажа

Не нашли подходящий проект в каталоге?

Мы можем разработать для вас индивидуальный проект!
Учтём все ваши требования по оформлению, планировке, дизайну. Закажите бесплатную консультацию по проекту дома вашей мечты.
Мы можем разработать для вас индивидуальный проект! Учтём все ваши требования по оформлению, планировке, дизайну. Закажите бесплатную консультацию по проекту дома вашей мечты.
Получить консультацию

Состав проекта

Общие данные по проекту
Основные строительные показатели
Экспликация полов
Ведомость отделки помещений
Ведомость перемычек
Спецификации заполнения оконных и дверных проемов
Вентиляционные стояки
Поэтажные планы
Фасады
План кровли
Основные разрезы по дому
Маркировочные планы
Архитектурно-строительный раздел (АР):
Конструктивные решения (КР):
Общие данные по проекту
Схемы расположения фундаментов
Схема расположения перекрытий
Схема расположения стропил
Сечения по схемам расположения
Основные конструктивные узлы и детали
Спецификации
Ведомости расхода стали
Выборка древесины
Инженерный раздел (ИР):
Раздел включает внутренние инженерные коммуникации
Водоснабжение и канализация (ВК)
Электрооборудование (ЭО)
Отопление (ОВ) — в часть проектов не входит
Строительный паспорт проекта дома:
Паспорт необходим для согласования и утверждения проекта у районного архитектора
Дополнительная копия рабочих чертежей:
Дополнительная копия необходима для расчета сметы и передачи чертежей строителям
Вся предоставляемая документация разрабатывается при заказе строительства дома под ключ в нашей компании и входит в общую смету строительства. Если вы хотите заказать разработку индивидуального проекта на строительство отдельно, мы готовы оказать вам такую услугу. Для заказа разработки индивидуального проекта заполните форму ниже.
05
02
03
04
01
Остались вопросы?
Расскажем о наших услугах, видах работ, рассчитаем стоимость и подготовим индивидуальное предложение!

Наш менеджер свяжется с вами и расскажет о технологиях, ценах, сроках.
Проекты загородных домов
    Рекомендуемые статьи