Что ищете?
Санкт-Петербург, Малый проспект Петроградской стороны, дом 16, офис 22
dom@shirota60.ru
СПб, ул. Лизы Чайкиной, дом 25, лит. А
Чтобы связаться с нами:
+7-911-926-04-84
+7-911-926-04-64

Проект Кавелахта

2
Этажность
479
Площадь, м²
22x21 м
197 м²
5
3
Газобетон
размер
Жилая площадь
Спален
Классический
санузлов
материал
Стиль
Бассейн
опции
Срок строительcтва
от 300 дней
Стоимость
от 28 740 000 ₽

Описание проекта

Классический дизайн дома смешанный с современным стилем впечатляюще смотрится в дополнении с ухоженным садом и обустроенной придомовой территорией.

В доме размещено 5 спален, есть гостевая спальня, которую можно перепроектировать в кабинет.
Гостиная совмещённая с кухонной зоной, которую при желании можно разделить на 2 части.
В доме две просторных гардеробных, прачечная-сушка, 2 санузла.

В прихожей есть встроенный шкаф для верхней одежды.

В кухне предусмотрено много рабочих поверхностей, кухонный остров.

Весь дом прекрасно освещен благодаря окнам "второго света".
Особенности проекта
Второй свет
Гараж
Гардеробная
Прачечная
Кабинет
Терраса

Планировка дома

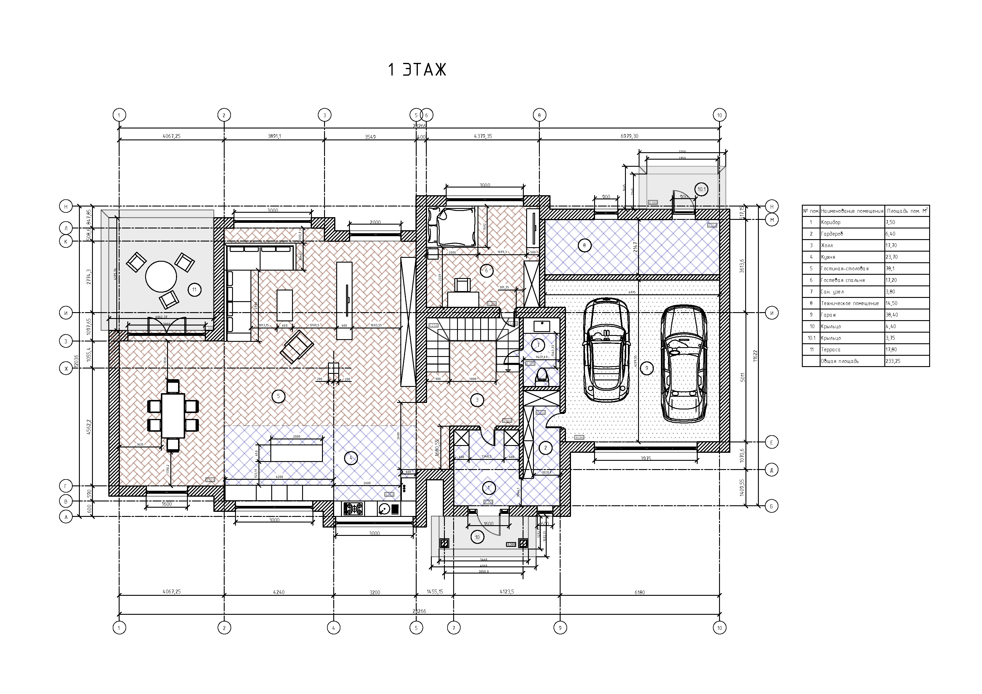
Планировка первого этажа
Прихожая 16,2 м²
Кухня 23,7 м²
Гостиная-столовая 78,1 м²
Спальня-гостевая 17,2 м²
Гардероб 6,4 м²
Техническое помещение 14,5 м²
Терраса 17,8 м²
Гараж 38,4 м²
Холл 17,7 м²
Крыльцо 4,4 м²
Санузел 3,8 м²
Коридор 7,5 м²
Крыльцо 3,75 м²
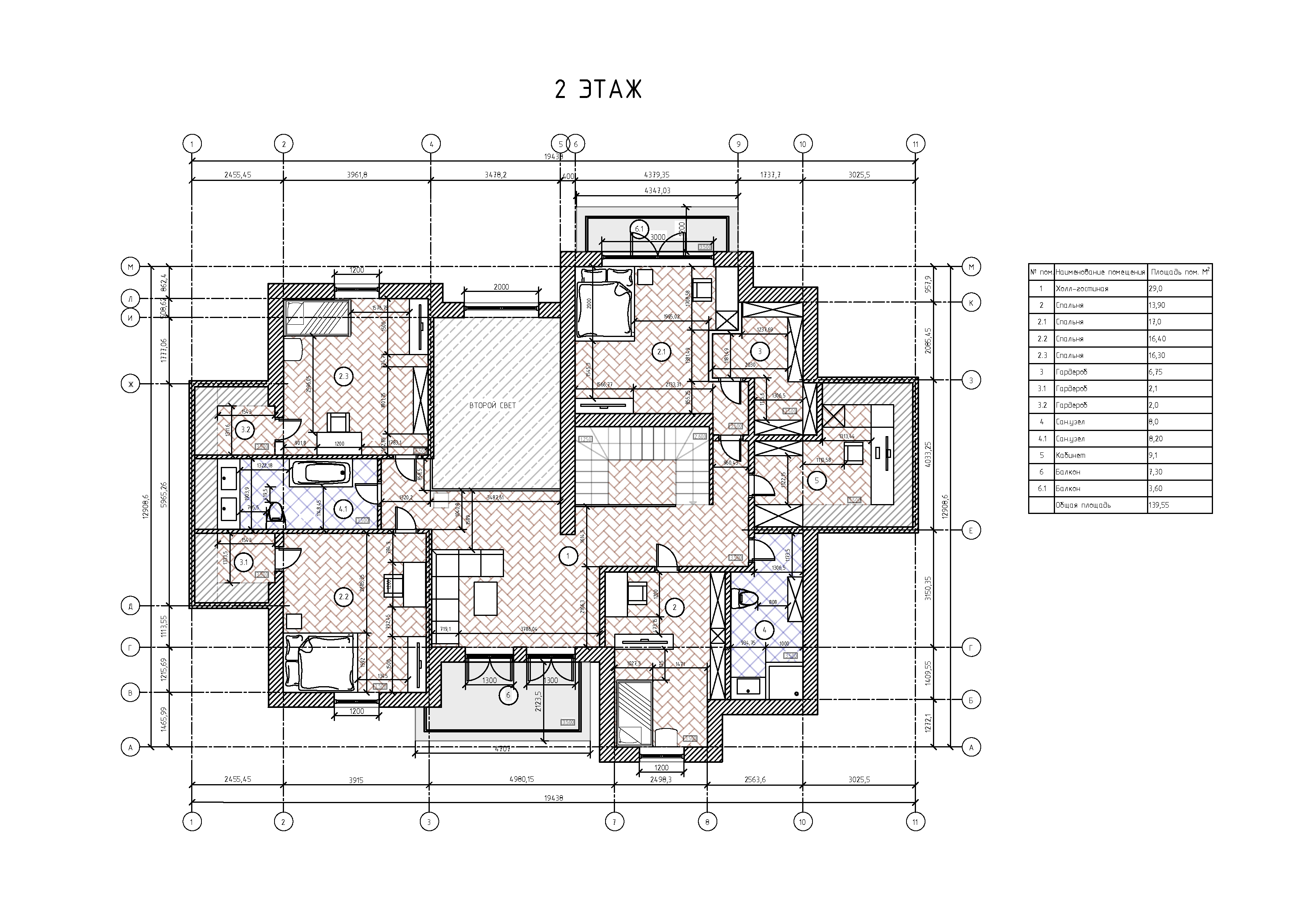
Планировка второго этажа
Кабинет 9,1 м²
Спальня 13,9 м²
Гардероб 6,75 м²
Холл-гостиная 29 м²
Балкон 7,3 м²
Санузел 8 м²
Балкон 3,6 м²
Спальня 17 м²
Спальня 16,4 м²
Спальня 16,3 м²
Гардероб 2,1 м²
Гардероб 2,0 м²
Санузел 8,2 м²

Не нашли подходящий проект в каталоге?

Мы можем разработать для вас индивидуальный проект!
Учтём все ваши требования по оформлению, планировке, дизайну. Закажите бесплатную консультацию по проекту дома вашей мечты.
Мы можем разработать для вас индивидуальный проект! Учтём все ваши требования по оформлению, планировке, дизайну. Закажите бесплатную консультацию по проекту дома вашей мечты.
Получить консультацию

Состав проекта

Общие данные по проекту
Основные строительные показатели
Экспликация полов
Ведомость отделки помещений
Ведомость перемычек
Спецификации заполнения оконных и дверных проемов
Вентиляционные стояки
Поэтажные планы
Фасады
План кровли
Основные разрезы по дому
Маркировочные планы
Архитектурно-строительный раздел (АР):
Конструктивные решения (КР):
Общие данные по проекту
Схемы расположения фундаментов
Схема расположения перекрытий
Схема расположения стропил
Сечения по схемам расположения
Основные конструктивные узлы и детали
Спецификации
Ведомости расхода стали
Выборка древесины
Инженерный раздел (ИР):
Раздел включает внутренние инженерные коммуникации
Водоснабжение и канализация (ВК)
Электрооборудование (ЭО)
Отопление (ОВ) — в часть проектов не входит
Строительный паспорт проекта дома:
Паспорт необходим для согласования и утверждения проекта у районного архитектора
Дополнительная копия рабочих чертежей:
Дополнительная копия необходима для расчета сметы и передачи чертежей строителям
Вся предоставляемая документация разрабатывается при заказе строительства дома под ключ в нашей компании и входит в общую смету строительства. Если вы хотите заказать разработку индивидуального проекта на строительство отдельно, мы готовы оказать вам такую услугу. Для заказа разработки индивидуального проекта заполните форму ниже.
05
02
03
04
01
Остались вопросы?
Расскажем о наших услугах, видах работ, рассчитаем стоимость и подготовим индивидуальное предложение!

Наш менеджер свяжется с вами и расскажет о технологиях, ценах, сроках.
Проекты загородных домов
    Рекомендуемые статьи