Что ищете?
Санкт-Петербург, Малый проспект Петроградской стороны, дом 16, офис 22
dom@shirota60.ru
СПб, ул. Лизы Чайкиной, дом 25, лит. А
Чтобы связаться с нами:
+7-911-926-04-84
+7-911-926-04-64

Проект Куттузи

1
Этажность
234,5
Площадь, м²
11,2x13,2 м
73,15 м²
3
2
Газобетон
размер
Жилая площадь
Спален
Скандинавский
санузлов
материал
Стиль
Терраса
опции
Срок строительcтва
от 100 дней
Стоимость под ключ
от 14 070 000 ₽

Описание проекта

Окно в ванной
Гараж
Оптимальный вариант небольшого дома с 2 спальнями, большой кухней-столовой совмещенной с гостиной.

Этот дом в классическом стиле с компактно расположенными помещениями подойдёт для любого образа жизни. Базовый план не включает подвальное помещение, но по желанию заказчика можно добавить цокольный этаж.

Экстерьер дома - белые окна и двери, стены оштукатурены сверхпрочной фасадной штукатуркой светло-голубого оттенка, которая отличается яркостью и устойчивостью к выгоранию.

Очень удобная светлые гостиная и кухня, благодаря нескольким большим окнам.
Кухня, функциональная и имеет много места для хранения.

Спальни расположены рядом друг с другом  Спальни оптимального размера и рядом ванная комната с ванной, душевой кабиной и отделённой раковиной.

Со стороны входа находятся гараж и техническое помещение которое чаще всего используют в качестве - котельной.

Компактный дом для  комфорта в жизни!
Особенности проекта

Планировка дома

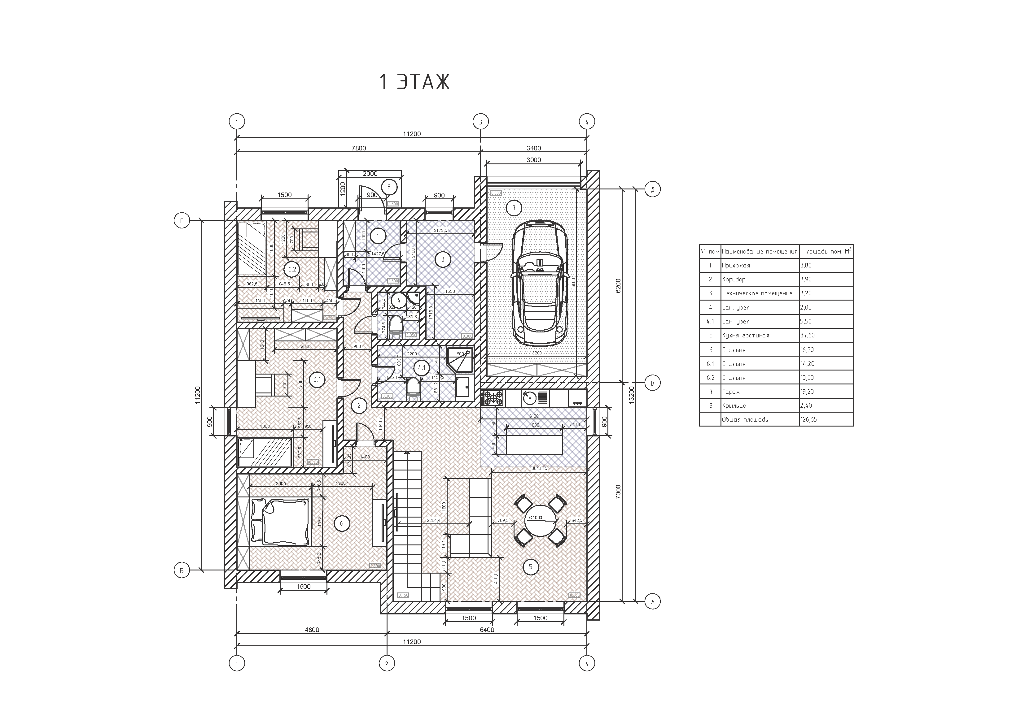
Планировка первого этажа
Коридор 7,9 м²
Прихожая 3,8 м²
Гостиная совмещённая с кухней-столовой 37,6 м²
Спальня 10,5 м²
Санузел 5,5 м²
Техническое помещение 7,2 м²
Гараж 19,2 м²
Санузел 2,05 м²
Спальня 14,2 м²
Спальня 16,3 м²
Крыльцо 2,4 м²
Планировка первого этажа
Гостиная 75 м²

Не нашли подходящий проект в каталоге?

Мы можем разработать для вас индивидуальный проект!
Учтём все ваши требования по оформлению, планировке, дизайну. Закажите бесплатную консультацию по проекту дома вашей мечты.
Мы можем разработать для вас индивидуальный проект! Учтём все ваши требования по оформлению, планировке, дизайну. Закажите бесплатную консультацию по проекту дома вашей мечты.
Получить консультацию

Состав проекта

Общие данные по проекту
Основные строительные показатели
Экспликация полов
Ведомость отделки помещений
Ведомость перемычек
Спецификации заполнения оконных и дверных проемов
Вентиляционные стояки
Поэтажные планы
Фасады
План кровли
Основные разрезы по дому
Маркировочные планы
Архитектурно-строительный раздел (АР):
Конструктивные решения (КР):
Общие данные по проекту
Схемы расположения фундаментов
Схема расположения перекрытий
Схема расположения стропил
Сечения по схемам расположения
Основные конструктивные узлы и детали
Спецификации
Ведомости расхода стали
Выборка древесины
Инженерный раздел (ИР):
Раздел включает внутренние инженерные коммуникации
Водоснабжение и канализация (ВК)
Электрооборудование (ЭО)
Отопление (ОВ) — в часть проектов не входит
Строительный паспорт проекта дома:
Паспорт необходим для согласования и утверждения проекта у районного архитектора
Дополнительная копия рабочих чертежей:
Дополнительная копия необходима для расчета сметы и передачи чертежей строителям
Вся предоставляемая документация разрабатывается при заказе строительства дома под ключ в нашей компании и входит в общую смету строительства. Если вы хотите заказать разработку индивидуального проекта на строительство отдельно, мы готовы оказать вам такую услугу. Для заказа разработки индивидуального проекта заполните форму ниже.
05
02
03
04
01
Остались вопросы?
Расскажем о наших услугах, видах работ, рассчитаем стоимость и подготовим индивидуальное предложение!

Наш менеджер свяжется с вами и расскажет о технологиях, ценах, сроках.
Проекты загородных домов
    Рекомендуемые статьи