Что ищете?
Санкт-Петербург, Малый проспект Петроградской стороны, дом 16, офис 22
dom@shirota60.ru
СПб, ул. Лизы Чайкиной, дом 25, лит. А
Чтобы связаться с нами:
+7-911-926-04-84
+7-911-926-04-64

Проект ОЛИКИ

1
Этажность
147,7
Площадь, м²
14x11,05 м
57 м²
3
2
Кирпич, Газобетон
размер
Жилая площадь
Спален
Современный
санузлов
материал
Стиль
Терраса
опции
Срок строительcтва
от 100 дней
Стоимость
от 8 862 000 ₽
Стоимость + опции
от 10 988 880 ₽

Описание проекта

Окно в ванной
Панорамные окна
Камин
Терраса
Оптимальный вариант небольшого дома с 3 спальнями, большой кухней-столовой совмещенной с гостиной.

Этот дом в Современном стиле с компактно расположенными помещениями подойдёт для любого образа жизни.

Экстерьер дома отличается современностью дизайна, с необычными формами, декоративными элементами.

Очень удобная светлые гостиная и кухня, благодаря большим панорамным окнам.

Кухня, функциональная и имеет много места для хранения.

Спальни расположены рядом друг с другом  Спальни оптимального размера и рядом ванная комната с ванной, душевой кабиной и отделённой раковиной.

Со стороны входа находятся гардеробная. Вход в техническое помещение доступен со двора и со стороны кухни, его чаще всего используют в качестве - котельной.

Компактный дом для  комфорта в жизни!
Особенности проекта

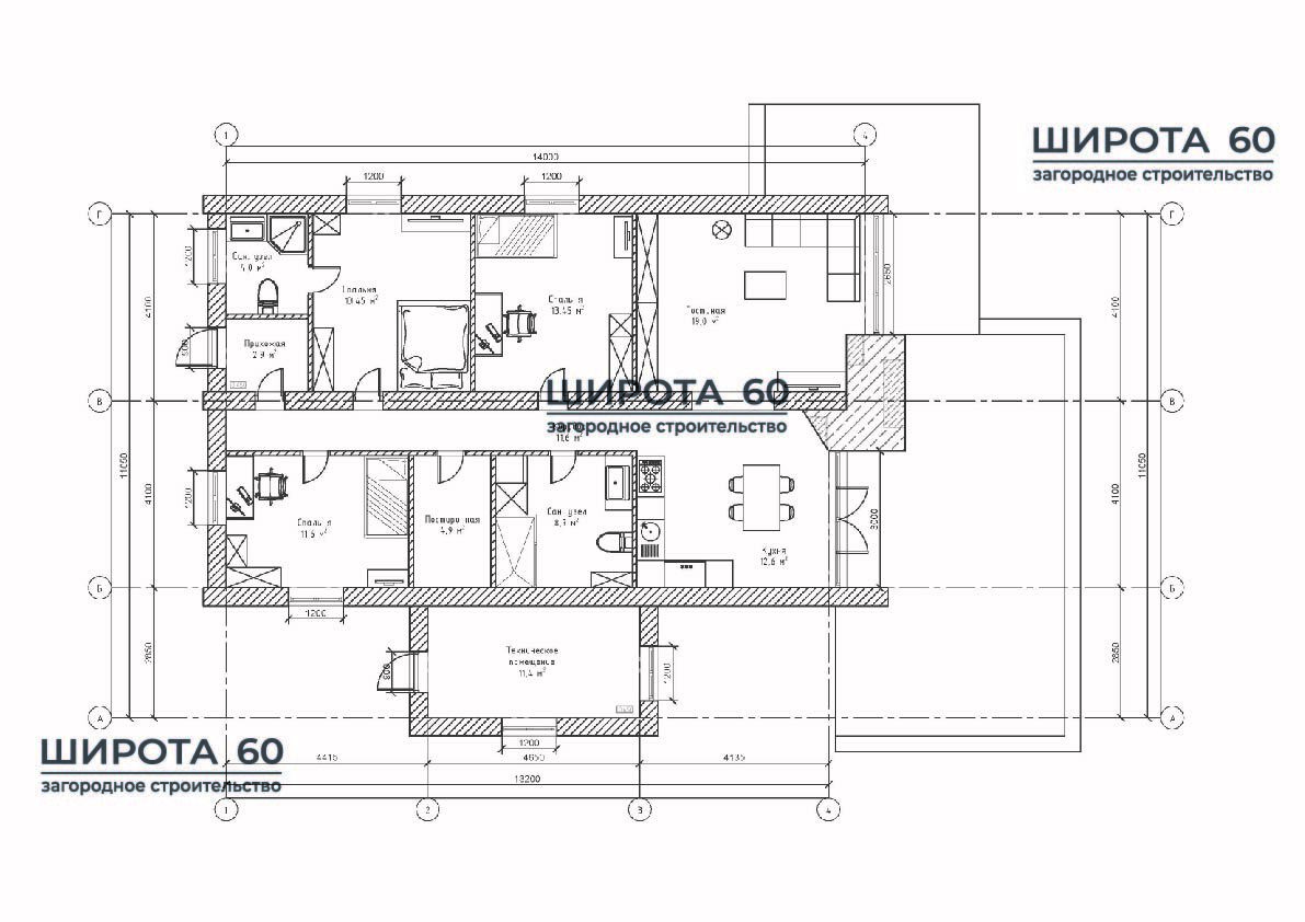
Планировка дома

Холл 11,6 м²
Гостиная 19 м²
Спальня 1 13,45 м²
Спальня 2 13,45 м²
Санузел 8,7 м²
Постирочная 4,9 м²
Планировка первого этажа
Спальня 2 11,6 м²
Санузел 4 м²
Коридор 2,9 м²
Кухня 12,6 м²
Техническое помещение 11,4 м²
Терраса 127 м²

Не нашли подходящий проект в каталоге?

Мы можем разработать для вас индивидуальный проект!
Учтём все ваши требования по оформлению, планировке, дизайну. Закажите бесплатную консультацию по проекту дома вашей мечты.
Мы можем разработать для вас индивидуальный проект! Учтём все ваши требования по оформлению, планировке, дизайну. Закажите бесплатную консультацию по проекту дома вашей мечты.
Получить консультацию

Состав проекта

Общие данные по проекту
Основные строительные показатели
Экспликация полов
Ведомость отделки помещений
Ведомость перемычек
Спецификации заполнения оконных и дверных проемов
Вентиляционные стояки
Поэтажные планы
Фасады
План кровли
Основные разрезы по дому
Маркировочные планы
Архитектурно-строительный раздел (АР):
Конструктивные решения (КР):
Общие данные по проекту
Схемы расположения фундаментов
Схема расположения перекрытий
Схема расположения стропил
Сечения по схемам расположения
Основные конструктивные узлы и детали
Спецификации
Ведомости расхода стали
Выборка древесины
Инженерный раздел (ИР):
Раздел включает внутренние инженерные коммуникации
Водоснабжение и канализация (ВК)
Электрооборудование (ЭО)
Отопление (ОВ) — в часть проектов не входит
Строительный паспорт проекта дома:
Паспорт необходим для согласования и утверждения проекта у районного архитектора
Дополнительная копия рабочих чертежей:
Дополнительная копия необходима для расчета сметы и передачи чертежей строителям
Вся предоставляемая документация разрабатывается при заказе строительства дома под ключ в нашей компании и входит в общую смету строительства. Если вы хотите заказать разработку индивидуального проекта на строительство отдельно, мы готовы оказать вам такую услугу. Для заказа разработки индивидуального проекта заполните форму ниже.
05
02
03
04
01
Остались вопросы?
Расскажем о наших услугах, видах работ, рассчитаем стоимость и подготовим индивидуальное предложение!

Наш менеджер свяжется с вами и расскажет о технологиях, ценах, сроках.
Проекты загородных домов
    Рекомендуемые статьи