Что ищете?
Санкт-Петербург, Малый проспект Петроградской стороны, дом 16, офис 22
dom@shirota60.ru
СПб, ул. Лизы Чайкиной, дом 25, лит. А
Чтобы связаться с нами:
+7-911-926-04-84
+7-911-926-04-64

Проект Пегелево

2
Этажность
508,1
Площадь, м²
22x21 м
306,8 м²
3
2
Газобетон
размер
Жилая площадь
Спален
Классический
санузлов
материал
Стиль
Терраса
опции
Срок строительcтва
от 250 дней
Стоимость
от 30 486 000 ₽

Описание проекта

Классический дизайн дома смешанный с современным стилем впечатляюще смотрится в дополнении с ухоженным садом и обустроенной придомовой территорией.
В доме размещено 3 спальни, есть помещение свободного назначения (зоны отдыха на втором этаже) которое можно перепроектировать в 4 спальню или кабинет.
Гостиная совмещённая с кухонной зоной, которую при желании можно разделить на 2 части.
В доме две просторных гардеробных, прачечная-сушка, 2 санузла.

В прихожей есть встроенный шкаф для верхней одежды.

В кухне предусмотрено много рабочих поверхностей, кухонный остров.

Весь дом прекрасно освещен благодаря панорамным окнам, выходящим на террасу, а также окнам второго света.
Особенности проекта
Второй свет
Панорамные окна
Гараж
Гардеробная
Прачечная

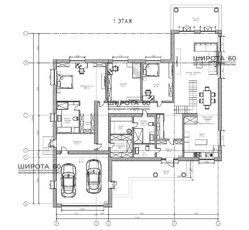
Планировка дома

Прихожая 16,2 м²
Кухня 26,6 м²
Гостиная 66,4 м²
Спальня 1 32,1 м²
Гардероб 4,5 м²
Техническое помещение 9,1 м²
Прачечная 3,7 м²
Гараж 36,6 м²
Гардероб 3,4 м²
Холл 17,3 м²
Ванная 16 м²
Санузел 16 м²
Спальня 2 24,5 м²
Спальня 3 23,8 м²
Планировка первого этажа
Комната отдыха 160 м²
Чердак 43 м²
Планировка второго этажа

Не нашли подходящий проект в каталоге?

Мы можем разработать для вас индивидуальный проект!
Учтём все ваши требования по оформлению, планировке, дизайну. Закажите бесплатную консультацию по проекту дома вашей мечты.
Мы можем разработать для вас индивидуальный проект! Учтём все ваши требования по оформлению, планировке, дизайну. Закажите бесплатную консультацию по проекту дома вашей мечты.
Получить консультацию

Состав проекта

Общие данные по проекту
Основные строительные показатели
Экспликация полов
Ведомость отделки помещений
Ведомость перемычек
Спецификации заполнения оконных и дверных проемов
Вентиляционные стояки
Поэтажные планы
Фасады
План кровли
Основные разрезы по дому
Маркировочные планы
Архитектурно-строительный раздел (АР):
Конструктивные решения (КР):
Общие данные по проекту
Схемы расположения фундаментов
Схема расположения перекрытий
Схема расположения стропил
Сечения по схемам расположения
Основные конструктивные узлы и детали
Спецификации
Ведомости расхода стали
Выборка древесины
Инженерный раздел (ИР):
Раздел включает внутренние инженерные коммуникации
Водоснабжение и канализация (ВК)
Электрооборудование (ЭО)
Отопление (ОВ) — в часть проектов не входит
Строительный паспорт проекта дома:
Паспорт необходим для согласования и утверждения проекта у районного архитектора
Дополнительная копия рабочих чертежей:
Дополнительная копия необходима для расчета сметы и передачи чертежей строителям
Вся предоставляемая документация разрабатывается при заказе строительства дома под ключ в нашей компании и входит в общую смету строительства. Если вы хотите заказать разработку индивидуального проекта на строительство отдельно, мы готовы оказать вам такую услугу. Для заказа разработки индивидуального проекта заполните форму ниже.
05
02
03
04
01
Остались вопросы?
Расскажем о наших услугах, видах работ, рассчитаем стоимость и подготовим индивидуальное предложение!

Наш менеджер свяжется с вами и расскажет о технологиях, ценах, сроках.
Проекты загородных домов
    Рекомендуемые статьи