Что ищете?
Санкт-Петербург, Малый проспект Петроградской стороны, дом 16, офис 22
dom@shirota60.ru
СПб, ул. Лизы Чайкиной, дом 25, лит. А
Чтобы связаться с нами:
+7-911-926-04-84
+7-911-926-04-64

Проект райкузи

2
Этажность
456,5
Площадь, м²
10,6x18,8 м
232 м²
4
3
Газобетон
размер
Жилая площадь
Спален
Современный
санузлов
материал
Стиль
Гараж
опции
Срок строительcтва
от 180 дней
Стоимость
от 27 390 000 ₽

Описание проекта

Проект загородного дома с гаражом.

Этот удобный проект для большой семьи.   Одну из спален второго этажа можно использовать как гостевую или переоборудовать в кабинет. Общая площадь дома 390 метров.

Из прихожей вы попадаете на просторную гостиную совмещённую с кухней . Открытая планировка кухни, столовой и гостиной создаёт светлое помещение, которое подчёркивает второй свет.

Также при выходе в  дом из гаража нужно пройти через коридор-гардеробную, предназначенный для переодевания после осенних прогулок или работы в саду. Так грязь с сапог не попадёт в чистую гостиную и далее на кухню.

На втором этаже расположена комната отдыха, три спальни, гардероб, ванная и санузел.

Прачечная расположена на первом этаже. На цокольном этаже расположена котельная. Также там есть место для размещения полноценного санузла без необходимости прокладывать трубы через весь дом.

Планировка цокольного этажа  легко адаптируется под потребности заказчика. Например, здесь можно разместить кабинет, зону отдыха с кинотеатром, биллиард, спортзал или личный бар.
Особенности проекта
Спорт-зал/комната отдыха
Окно в ванной
Терраса
Гараж
Кабинет

Планировка дома

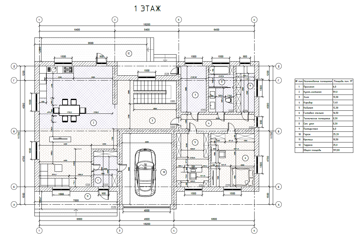
Планировка первого этажа
Кухня-столовая совмещённая с гостиной 59 м²
Коридор 3,7 м²
Прихожая 6 м²
Постирочная 6 м²
Гостевая спальня 16,5 м²
Крыльцо 10,5 м²
Ванная комната 8,3 м²
Кабинет 12,3 м²
Гараж 25,2 м²
Терраса 25 м²
Котельная 8,3 м²
Холл 13,3 м²
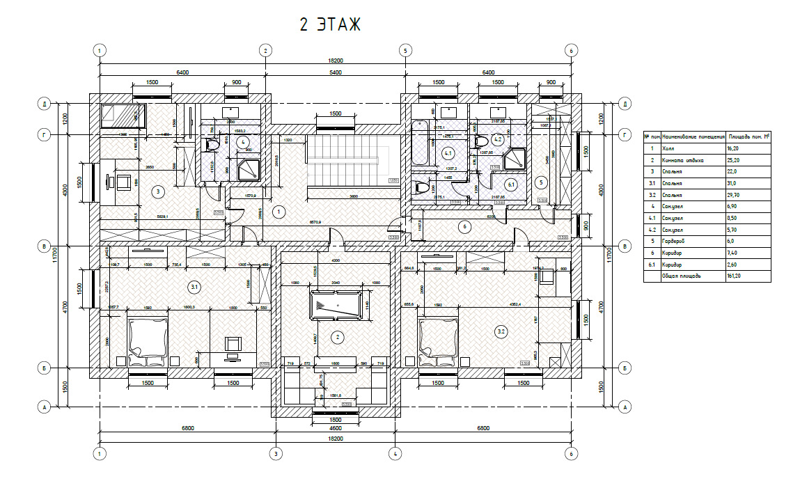
Планировка второго этажа
Гардероб 6 м²
Ванная 8,5 м²
Спальня 31 м²
Холл 16,2 м²
Комната отдыха 25,2 м²
Спальня 29,7 м²
Спальня 22 м²
Санузел 6,9 м²
Санузел 5,7 м²
Коридор 7,4 м²
Коридор 2,6 м²

Не нашли подходящий проект в каталоге?

Мы можем разработать для вас индивидуальный проект!
Учтём все ваши требования по оформлению, планировке, дизайну. Закажите бесплатную консультацию по проекту дома вашей мечты.
Мы можем разработать для вас индивидуальный проект! Учтём все ваши требования по оформлению, планировке, дизайну. Закажите бесплатную консультацию по проекту дома вашей мечты.
Получить консультацию

Состав проекта

Общие данные по проекту
Основные строительные показатели
Экспликация полов
Ведомость отделки помещений
Ведомость перемычек
Спецификации заполнения оконных и дверных проемов
Вентиляционные стояки
Поэтажные планы
Фасады
План кровли
Основные разрезы по дому
Маркировочные планы
Архитектурно-строительный раздел (АР):
Конструктивные решения (КР):
Общие данные по проекту
Схемы расположения фундаментов
Схема расположения перекрытий
Схема расположения стропил
Сечения по схемам расположения
Основные конструктивные узлы и детали
Спецификации
Ведомости расхода стали
Выборка древесины
Инженерный раздел (ИР):
Раздел включает внутренние инженерные коммуникации
Водоснабжение и канализация (ВК)
Электрооборудование (ЭО)
Отопление (ОВ) — в часть проектов не входит
Строительный паспорт проекта дома:
Паспорт необходим для согласования и утверждения проекта у районного архитектора
Дополнительная копия рабочих чертежей:
Дополнительная копия необходима для расчета сметы и передачи чертежей строителям
Вся предоставляемая документация разрабатывается при заказе строительства дома под ключ в нашей компании и входит в общую смету строительства. Если вы хотите заказать разработку индивидуального проекта на строительство отдельно, мы готовы оказать вам такую услугу. Для заказа разработки индивидуального проекта заполните форму ниже.
05
02
03
04
01
Остались вопросы?
Расскажем о наших услугах, видах работ, рассчитаем стоимость и подготовим индивидуальное предложение!

Наш менеджер свяжется с вами и расскажет о технологиях, ценах, сроках.
Проекты загородных домов
    Рекомендуемые статьи