Что ищете?
Санкт-Петербург, Малый проспект Петроградской стороны, дом 16, офис 22
dom@shirota60.ru
СПб, ул. Лизы Чайкиной, дом 25, лит. А
Чтобы связаться с нами:
+7-911-926-04-84
+7-911-926-04-64

Проект Штурмангоф

2
Этажность
244
Площадь, м²
11,2x11,7 м
108 м²
4
3
Газобетон
размер
Жилая площадь
Спален
Современный
санузлов
материал
Стиль
Гараж
опции
Срок строительcтва
от 200 дней
Стоимость
от 14 640 000 ₽

Описание проекта

Особенности проекта
Окно в ванной
Панорамные окна
Гараж
Современный проект дома с элементами английского стиля, проект с четырьмя спальнями. Площадь дома 244 квадратных метра. Главной особенностью планировки этого дома являются компактность и количество спален, которые рассчитаны на большую семью.

Пройдя в гостинную, мы попадаем в просторную комнату, соединяющую гостевую спальню, кабинет и главную жилую зону дома с кухней и просторной ванной.
В просторной гостиной много естественного света, благодаря большим окнам. Кухня спроектирована вокруг большого центрального острова, на котором легко могут разместиться 5 гостей, а рядом расположена удобная кладовая.

На первом этаже есть большая гардеробная и ванная комната. На втором этаже есть спальня с отдельным санузлом и для двух других спален ещё один общий санузел.

Планировка дома

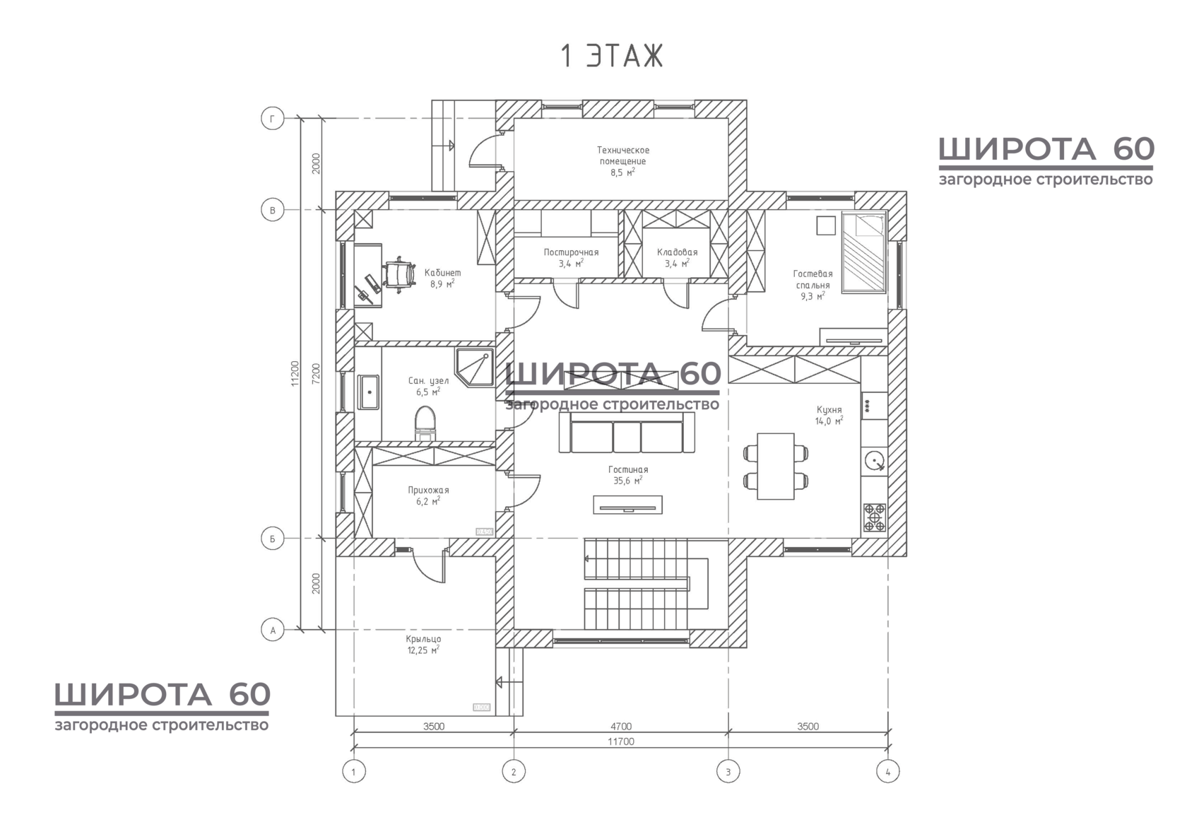
Кухня-столовая 14 м²
Гостиная 35,6 м²
Прихожая 6,2 м²
Гостевая спальня 9,3 м²
Санузел 6,5 м²
Кабинет 8,9 м²
Крыльцо 12,25 м²
Планировка первого этажа
Кладовая 3,4 м²
Техническое помещение 7,4 м²
Мастер-спальня 20,3 м²
Гардероб 4,2 м²
Спальня 18,2 м²
Санузел 4,4 м²
Планировка второго этажа
Холл 21,5 м²
Спальня 15,7 м²
Санузел 6,2 м²

Не нашли подходящий проект в каталоге?

Мы можем разработать для вас индивидуальный проект!
Учтём все ваши требования по оформлению, планировке, дизайну. Закажите бесплатную консультацию по проекту дома вашей мечты.
Мы можем разработать для вас индивидуальный проект! Учтём все ваши требования по оформлению, планировке, дизайну. Закажите бесплатную консультацию по проекту дома вашей мечты.
Получить консультацию

Состав проекта

Общие данные по проекту
Основные строительные показатели
Экспликация полов
Ведомость отделки помещений
Ведомость перемычек
Спецификации заполнения оконных и дверных проемов
Вентиляционные стояки
Поэтажные планы
Фасады
План кровли
Основные разрезы по дому
Маркировочные планы
Архитектурно-строительный раздел (АР):
Конструктивные решения (КР):
Общие данные по проекту
Схемы расположения фундаментов
Схема расположения перекрытий
Схема расположения стропил
Сечения по схемам расположения
Основные конструктивные узлы и детали
Спецификации
Ведомости расхода стали
Выборка древесины
Инженерный раздел (ИР):
Раздел включает внутренние инженерные коммуникации
Водоснабжение и канализация (ВК)
Электрооборудование (ЭО)
Отопление (ОВ) — в часть проектов не входит
Строительный паспорт проекта дома:
Паспорт необходим для согласования и утверждения проекта у районного архитектора
Дополнительная копия рабочих чертежей:
Дополнительная копия необходима для расчета сметы и передачи чертежей строителям
Вся предоставляемая документация разрабатывается при заказе строительства дома под ключ в нашей компании и входит в общую смету строительства. Если вы хотите заказать разработку индивидуального проекта на строительство отдельно, мы готовы оказать вам такую услугу. Для заказа разработки индивидуального проекта заполните форму ниже.
05
02
03
04
01
Остались вопросы?
Расскажем о наших услугах, видах работ, рассчитаем стоимость и подготовим индивидуальное предложение!

Наш менеджер свяжется с вами и расскажет о технологиях, ценах, сроках.
Проекты загородных домов
    Рекомендуемые статьи