Что ищете?
Санкт-Петербург, Малый проспект Петроградской стороны, дом 16, офис 22
dom@shirota60.ru
СПб, ул. Лизы Чайкиной, дом 25, лит. А
Чтобы связаться с нами:
+7-911-926-04-84
+7-911-926-04-64

Проект Виллози

1
Этажность
201,6
Площадь, м²
15,2x16,7м
106,35 м²
3
2
Дерево, Газобетон
размер
Жилая площадь
Спален
Барнхаус
санузлов
материал
Стиль
Гараж
опции
Срок строительcтва
от 180 дней
Стоимость
от 12 096 000 ₽

Описание проекта

Особенности проекта
Открытая планировка
Окно в ванной
Панорамные окна
Терраса
Второй свет
Представляем новый проект дома для семьи с двумя детьми.

Универсальный дом, который можно изменить так как нравится именно вам. В этом проекте доступны различные варианты отделки, планировки, и даже дополнительный гараж!

С самого начала мы хотели использовать концепцию открытой планировки для семьи, потому что она пользуется спросом и очень модна. Большой остров на кухне будет способствовать общению с гостями или помощи во время приготовления ужина! Небольшая терраса подарит возможность насладиться утренней чашечкой кофе на свежем воздухе!

Вы будете очарованы главной спальней с большим окном, панорамными окнами создающими дополнительное освещение. Отдельная прачечная со столешницей и раковиной, удачно расположена, рядом с техническими помещениями, потому что скрыта от основной зоны.

Для этой модели дома мы предлагаем версию без гаража, но обратите внимание, что мы также предлагаем рассмотреть пристройку гаража на одну или две машины.

Планировка дома

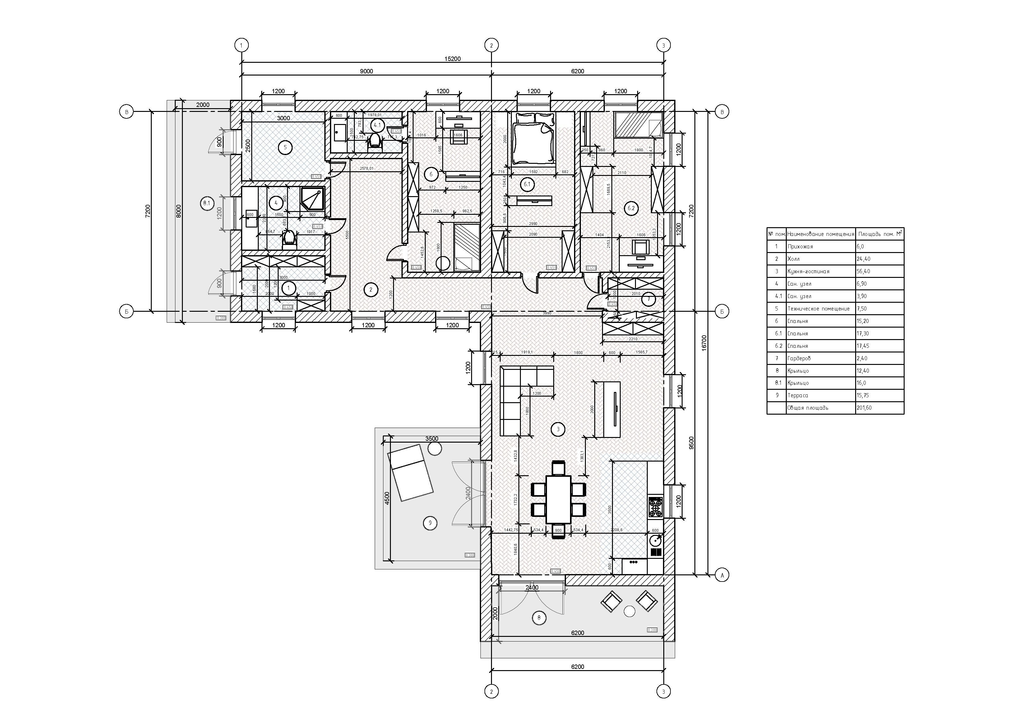
Планировка первого этажа
Мастер-спальня 17,45 м²
Спальня 15,2 м²
Спальня 17,3 м²
Гардероб 2,4 м²
Санузел 3,9 м²
Прихожая 6 м²
Кухня-столовая совмещенная с гостинной 56,4 м²
Крыльцо 16 м²
Техническое помещение 7,5 м²
Холл 24,4 м²
Терраса 15,75 м²
Санузел 6,9 м²
Крыльцо 12,4 м²

Не нашли подходящий проект в каталоге?

Мы можем разработать для вас индивидуальный проект!
Учтём все ваши требования по оформлению, планировке, дизайну. Закажите бесплатную консультацию по проекту дома вашей мечты.
Мы можем разработать для вас индивидуальный проект! Учтём все ваши требования по оформлению, планировке, дизайну. Закажите бесплатную консультацию по проекту дома вашей мечты.
Получить консультацию

Состав проекта

Общие данные по проекту
Основные строительные показатели
Экспликация полов
Ведомость отделки помещений
Ведомость перемычек
Спецификации заполнения оконных и дверных проемов
Вентиляционные стояки
Поэтажные планы
Фасады
План кровли
Основные разрезы по дому
Маркировочные планы
Архитектурно-строительный раздел (АР):
Конструктивные решения (КР):
Общие данные по проекту
Схемы расположения фундаментов
Схема расположения перекрытий
Схема расположения стропил
Сечения по схемам расположения
Основные конструктивные узлы и детали
Спецификации
Ведомости расхода стали
Выборка древесины
Инженерный раздел (ИР):
Раздел включает внутренние инженерные коммуникации
Водоснабжение и канализация (ВК)
Электрооборудование (ЭО)
Отопление (ОВ) — в часть проектов не входит
Строительный паспорт проекта дома:
Паспорт необходим для согласования и утверждения проекта у районного архитектора
Дополнительная копия рабочих чертежей:
Дополнительная копия необходима для расчета сметы и передачи чертежей строителям
Вся предоставляемая документация разрабатывается при заказе строительства дома под ключ в нашей компании и входит в общую смету строительства. Если вы хотите заказать разработку индивидуального проекта на строительство отдельно, мы готовы оказать вам такую услугу. Для заказа разработки индивидуального проекта заполните форму ниже.
05
02
03
04
01
Остались вопросы?
Расскажем о наших услугах, видах работ, рассчитаем стоимость и подготовим индивидуальное предложение!

Наш менеджер свяжется с вами и расскажет о технологиях, ценах, сроках.
Проекты загородных домов
    Рекомендуемые статьи