Что ищете?
Санкт-Петербург, Малый проспект Петроградской стороны, дом 16, офис 22
dom@shirota60.ru
СПб, ул. Лизы Чайкиной, дом 25, лит. А
Чтобы связаться с нами:
+7-911-926-04-84
+7-911-926-04-64

Проект ШАГРОВО

1
Этажность
320
Площадь, м²
22,81x17,4 м
253 м²
3
2
Кирпич, Газобетон
размер
Жилая площадь
Спален
Минимализм
санузлов
материал
Стиль
Терраса, Гараж
опции
Срок строительcтва
от 180 дней
Стоимость
от 19 200 000 ₽
Проект Гараж 1
Дополнение к этому проекту
Дополнительные опции проекта

Описание проекта

Современный внешний вид и минималистичная внешняя отделка очень нравится многим нашим клиентам.
В доме размещено 3 спальни, есть помещение (мастерская) свободного назначения которое можно перепроектировать в 4 спальню, кабинет,
гостиная-столовая совмещённая с кухонной зоной, так что эта планировка дома понравится как большим семьям с
несколькими детьми, так и семьям из нескольких поколений.
В доме две просторных гардеробных, прачечная-сушка, 2 санузла.

В прихожей есть встроенный шкаф для верхней одежды. Домашний офис расположен недалеко от главного входа в дом и может быть легко преобразован
в детскую, спальню 5 или игровую комнату, в зависимости от ваших потребностей. В главной спальне есть собственная терраса, а также вместительная гардеробная.
В двух отдельных ванных комнатах есть двойная раковина, большая душевая кабина, ванная и туалет.

В кухне предусмотрено много рабочих поверхностей, кухонный остров и практичную кладовую. В ней также расположен большой обеденный стол.
Зона гостиной прекрасно освещена благодаря панорамным окнам, выходящим на террасу, а также окнам второго света.
Особенности проекта
Кладовая
Окно в ванной
Панорамные окна
Мастерская
Гардеробная
Прачечная

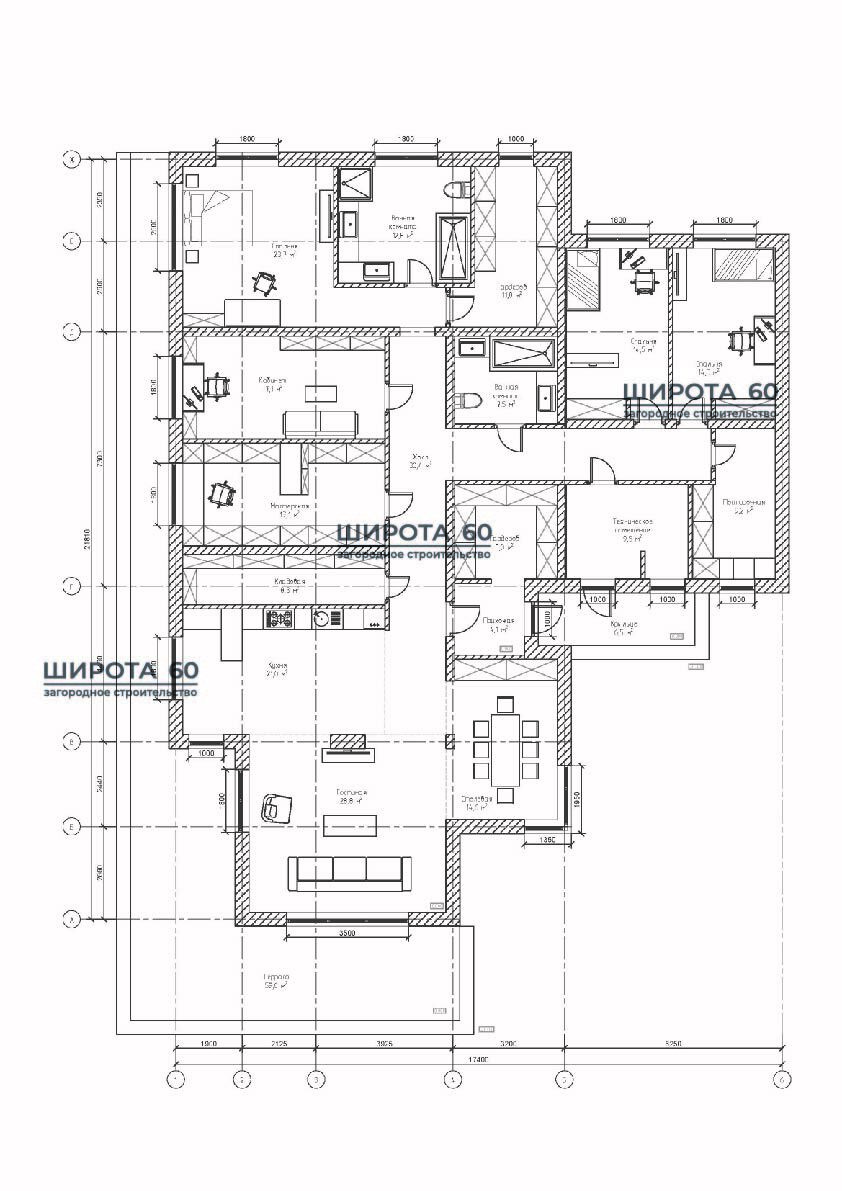
Планировка дома

Планировка первого этажа
Мастер-спальня 23,7 м²
Кабинет 17.1 м²
Мастер-ванная 12.80 м²
Кухня 21 м²
Гостиная 28,8 м²
Гардероб 1 8 м²
Крыльцо 6,75 м²
Гардероб 2 11,8 м²
Спальня 2 14,5 м²
Спальня 3 14,5 м²
Мастерская 17.1 м²
Ванная 7.5 м²
Кладовая 8,3 м²
Прачечная 9,22 м²
Техническое помещение 9,5 м²
Холл 30,40 м²
Столовая 14,6 м²
Терраса 59,6 м²

Не нашли подходящий проект в каталоге?

Мы можем разработать для вас индивидуальный проект!
Учтём все ваши требования по оформлению, планировке, дизайну. Закажите бесплатную консультацию по проекту дома вашей мечты.
Мы можем разработать для вас индивидуальный проект! Учтём все ваши требования по оформлению, планировке, дизайну. Закажите бесплатную консультацию по проекту дома вашей мечты.
Получить консультацию

Состав проекта

Общие данные по проекту
Основные строительные показатели
Экспликация полов
Ведомость отделки помещений
Ведомость перемычек
Спецификации заполнения оконных и дверных проемов
Вентиляционные стояки
Поэтажные планы
Фасады
План кровли
Основные разрезы по дому
Маркировочные планы
Архитектурно-строительный раздел (АР):
Конструктивные решения (КР):
Общие данные по проекту
Схемы расположения фундаментов
Схема расположения перекрытий
Схема расположения стропил
Сечения по схемам расположения
Основные конструктивные узлы и детали
Спецификации
Ведомости расхода стали
Выборка древесины
Инженерный раздел (ИР):
Раздел включает внутренние инженерные коммуникации
Водоснабжение и канализация (ВК)
Электрооборудование (ЭО)
Отопление (ОВ) — в часть проектов не входит
Строительный паспорт проекта дома:
Паспорт необходим для согласования и утверждения проекта у районного архитектора
Дополнительная копия рабочих чертежей:
Дополнительная копия необходима для расчета сметы и передачи чертежей строителям
Вся предоставляемая документация разрабатывается при заказе строительства дома под ключ в нашей компании и входит в общую смету строительства. Если вы хотите заказать разработку индивидуального проекта на строительство отдельно, мы готовы оказать вам такую услугу. Для заказа разработки индивидуального проекта заполните форму ниже.
05
02
03
04
01
Остались вопросы?
Расскажем о наших услугах, видах работ, рассчитаем стоимость и подготовим индивидуальное предложение!

Наш менеджер свяжется с вами и расскажет о технологиях, ценах, сроках.
Проекты загородных домов
    Рекомендуемые статьи